top of page


How To: ADU/DADU
PROJECT
ADU Sketches
CATEGORY
ADU/DADU
LOCATION
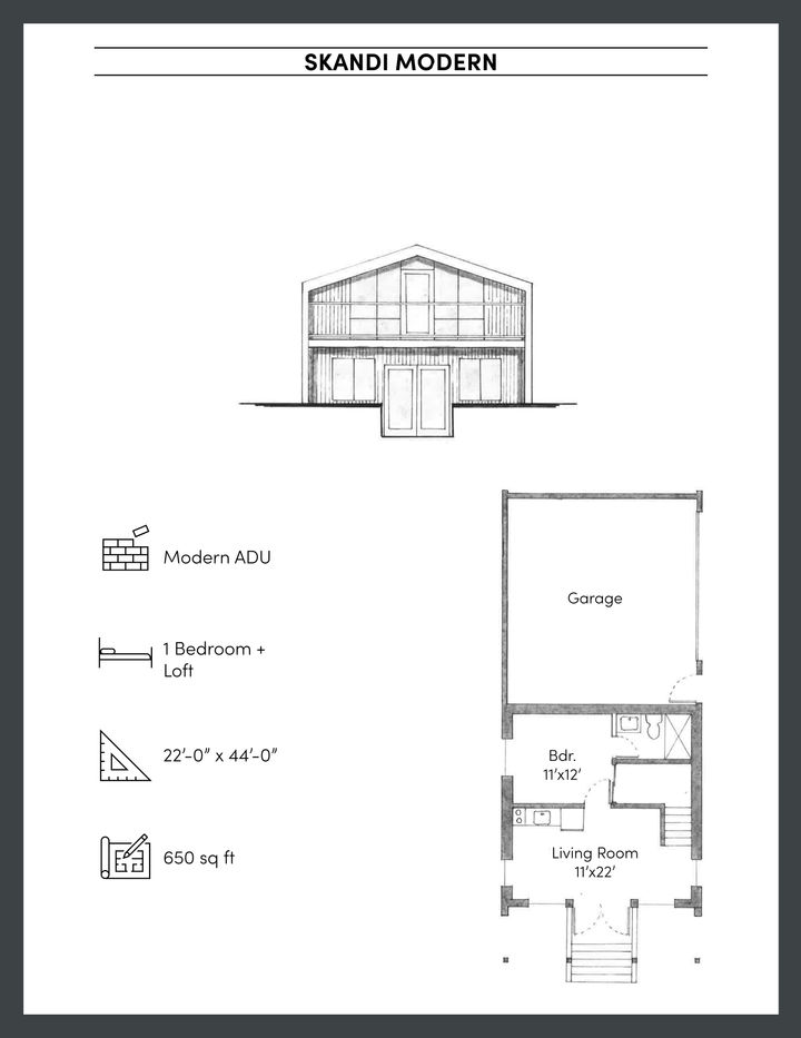
Here are a series of sketches depicting a variety of styles and floorplans we have created for ADU/DADUs. As you can see there are many mix and match opportunities. We design the space to fit your custom needs and style.
An “ADU” is an Accessory Dwelling Unit and is the proper term for any accessory residence on your property. An ADU needs, at a minimum, space for bathing and cooking. A “DADU” is a Detached Accessory Dwelling Unit which means it is a freestanding structure not attached to your primary home, but it is technically still an ADU. A Detached Accessory Dwelling has different site requirements from an attached ADU and can be located in your rear yard.

bottom of page








